Ο πίνακας ελέγχου έργων ανάπλασης μπορεί να χρησιμοποιηθεί από το ευρύ κοινό και από άλλα ενδιαφερόμενα μέρη για να επανεξετάσουν την κατάσταση των υπό κατασκευή έργων στο Δήμο του Πειραιά.
Προσαρμόστε τα φίλτρα παρακάτω και δείτε την κατάσταση του χάρτη με βάση τις επιλογές σας:
Τύπος
Έργο
Μελέτη
Έτος
- 9
Ενεργά έργα
Βιοκλιματική ανάπλαση οδού Μαρίας ΧατζηκυριακούΑναπλάσεις δρόμων
Άνετη εξυπηρέτηση όλων των δραστηριοτήτων για κατοίκους και επισκέπτες
Σκοπός της ανάπλασης είναι η ποιοτική και λειτουργική αναβάθμιση της οδού σε όλο το μήκος της, με ταυτόχρονη εξάλειψη διαπιστωμένων προβλήματων. Πρόκειται για μια σημαντική διαδρομή που συνδέει τις ακτές Μιαούλη και Θεμιστοκλέους και διέρχεται πλευρικά του Χατζηκυριάκειου Ιδρύματος.
Το έργο στοχεύει:
- Στη γενικότερη αρχιτεκτονική και βιοκλιματική αναβάθμιση της οδού
- Στην αύξηση των κοινόχρηστων χώρων πρασίνου αλλά και στη βελτίωση των υπαρχόντων
- Στη διευκόλυνση κυκλοφορίας στα πεζοδρόμια τόσο των πεζών όσο και των τυφλών και των ΑμεΑ, προσφέροντας στους πολίτες καλύτερες συνθήκες κυκλοφορίας
- Στην οριοθέτηση νέων θέσεων στάθμευσης σε όλο το μήκος της οδού
Η ανάπλαση της οδού Μ. Χατζηκυριακού επιτυγχάνεται μέσα από τις ακόλουθες γενικές παρεμβάσεις:
- Αρχιτεκτονική διαμόρφωση της οδού (ανακατασκευή πεζοδρομίων, επίστρωση ψυχρών υλικών, διαμόρφωση χαράξεων όδευσης τυφλών κλπ.)
- Οδοποιία (ανακατασκευή οδοστρώματος)-οδοσήμανση
- Αναβάθμιση αστικού εξοπλισμού της περιοχής
- Ενίσχυση υφιστάμενης βλάστησης με στόχο την περιβαλλοντική αναβάθμιση του μικροκλίματος της περιοχής
- Κατασκευή νέου δικτύου ηλεκτροφωτισμού των πεζοδρομίων αυτής
Αναβάθμιση του υφιστάμενου δικτύου ομβρίων


Με το έργο αυτό, με φορέα υλοποίησης τον Αναπτυξιακό Οργανισμό του Δήμου «Πειραιάς Plus», η Καλλίπολη γίνεται μια πιο σύγχρονη, φιλόξενη και λειτουργική περιοχή με σεβασμό στο τοπίο και την ιστορία της.
Πρόκειται για ένα σημαντικό έργο, στόχος του οποίου είναι να αναβαθμιστεί αισθητικά η περιοχή και να διασφαλιστεί η λειτουργικότητά της, να ενισχυθεί η εμπορική δραστηριότητα και να βελτιωθεί η καθημερινότητα των περιοίκων και των επισκεπτών.
Στις εργασίες περιλαμβάνονται, μεταξύ άλλων, η κατασκευή σύγχρονων πεζοδρομίων ευρωπαϊκών προδιαγραφών με όδευση τυφλών, η νέα χάραξη οδοστρώματος κυκλοφορίας οχημάτων, η δημιουργία διαβάσεων πεζών, η φύτευση δέντρων και η κατασκευή νέων καθιστικών.
Γιάννης Μώραλης
Δήμαρχος Πειραιά

Με την υλοποίηση αυτού του σημαντικού έργου είμαι πεπεισμένος ότι θα προκύψει ένα άρτιο και σύγχρονο αποτέλεσμα, με αρχιτεκτονικό ενδιαφέρον, που πάνω απ’ όλα θα δημιουργήσει τις προϋποθέσεις μιας «νέας περιόδου» για την περιοχή μας.
Από τον Δήμο και την Τεχνική του Υπηρεσία θα καταβληθεί, σε συνεργασία με τον ανάδοχο εργολάβο, κάθε δυνατή προσπάθεια ελαχιστοποίησης της όχλησης των κατοίκων της περιοχής και της παρεμπόδισης της λειτουργίας των παρακείμενων επιχειρήσεων από τις εκτελούμενες εργασίες.
Είναι σημαντική όμως και η συνεργασία των δημοτών για την ολοκλήρωση του έργου με ασφάλεια και τη μικρότερη δυνατή ταλαιπωρία για όλους τους εμπλεκόμενους.
Νικήτας Γκόλφης
Πρόεδρος Α’ Δημοτικής Κοινότητας

Ο κύριος στόχος της ανάπλασης είναι η διεύρυνση του ζωτικού χώρου των πεζών, η αισθητική αναβάθμιση του αστικού τοπίου και η δημιουργία ενός ευχάριστου και λειτουργικού περιβάλλοντος για τους περίοικους.
Επιμέρους στόχοι είναι η προσπάθεια για ενοποίηση όλων των υποπεριοχών, η αναβάθμιση της λειτουργικότητας, η άνετη εξυπηρέτηση όλων των δραστηριοτήτων που αναπτύσσονται κατά μήκος της Μ. Χατζηκυριακού καθώς και η δημιουργία συνθηκών άνεσης για όλους.
Ως προς τη στρατηγική, επιλέγεται μια ολιστική προσέγγιση βιώσιμης ανάπλασης, µε ισορροπημένες λύσεις που σέβονται τον άνθρωπο και το περιβάλλον, ενσωματώνοντας τις αρχές βιοκλιματικού σχεδιασμού και ελέγχου των αποτελεσμάτων των παρεμβάσεων σε επίπεδο θερμικής συμπεριφοράς. Βασικοί άξονες είναι η εξασφάλιση ευνοϊκών συνθηκών µικροκλίματος, η εξυπηρέτηση των λειτουργικών αναγκών, η εξασφάλιση ποιότητας και η ενίσχυση του κοινωνικού ρόλου του δημόσιου χώρου.
Ηλίας Σαλπέας
Διευθύνων Σύμβουλος “Πειραιάς Plus”
Βιοκλιματική ανάπλαση οδού Μαρίας Χατζηκυριακού
Ανάπλαση ιστορικού Κέντρου & ΣτεγάστρωνΑναπλάσεις δρόμων
Σύγχρονη στεγασμένη αγορά – τοπόσημο του Πειραιά
Το έργο αφορά στην ανάπλαση της κεντρικής αγοράς τροφίμων, γνωστής ως Ιπποδάμειου Αγοράς, και του παρακείμενου χώρου, πίσω από τον Πύργο του Πειραιά.
Οι παρεμβάσεις κινούνται σε τρεις άξονες:
- στη μετατροπή της αγοράς σε σύγχρονη στεγασμένη αγορά με κατασκευή μεταλλικού στεγάστρου στις οδούς Δημοσθένους και Λυκούργου και την ανάπλαση των εν λόγω πεζόδρομων.
- στην ανάπλαση του περιβάλλοντος χώρου, ο οποίος αναπτύσσεται περιμετρικά των οδών Μακράς Στοάς και Ιπποκράτους, πίσω από τον Πύργο του Πειραιά.
- στην ανάπλαση και ανακατασκευή των πεζοδρομίων της οδού Τσαμαδού στο τμήμα από Εθνικής Αντιστάσεως έως Δημ. Γούναρη.

Η ανάπλαση περιλαμβάνει:
- Κατασκευή στεγάστρου στους πεζοδρόμους Δημοσθένους και Λυκούργου, με στόχο την προστασία της λειτουργίας των καταστημάτων και των διερχομένων πεζών
- Μείωση πλάτους των οδών Μακράς Στοάς και Ιπποκράτους με παράλληλη αύξηση του πλάτους των πεζοδρομίων εκατέρωθεν των δύο οδών
- Ανακατασκευή πεζοδρομίων με χυτό αρχιτεκτονικό σκυρόδεμα και διαμόρφωση ραμπών για ΑμεΑ
- Πλήρη ανακατασκευή των πεζοδρομίων της οδού Τσαμαδού με νέες αντιολισθηρές πλάκες και δημιουργία οδηγών όδευσης τυφλών
- Αναβάθμιση αστικού εξοπλισμού περιοχής με σύγχρονα και καλαίσθητα καθιστικά, ζαρντινιέρες, μπάρες και κολωνάκια προστασίας παράνομης στάθμευσης και τοποθέτηση βυθιζόμενων κάδων
- Ενίσχυση φωτισμού με νέα, καλαίσθητα φωτιστικά τύπου LED
- Δημιουργία θέσεων στάθμευσης οχημάτων τροφοδοσίας
- Ενίσχυση του αστικού πρασίνου με νέες φυτεύσεις, επέκταση πράσινης νησίδας στην οδό Τσαμαδού
- Αναβάθμιση υφιστάμενου δικτύου συλλογής ομβρίων

Ένα ακόμη εμβληματικό έργο παίρνει σάρκα και οστά. Ένα έργο που θα δώσει μία άλλη εικόνα στην ιστορική αγορά της πόλης και
θα κάνει το κέντρο του Πειραιά πολύ πιο ελκυστικό από εμπορική και τουριστική άποψη.
Σε όλο τον κόσμο οι αγορές τροφίμων αποτελούν πόλο έλξης για κατοίκους και επισκέπτες και γίνονται τοπόσημα παντού. Φιλοδοξούμε να επαναφέρουμε την παλιά αίγλη της Κεντρικής Αγοράς και να γίνει ένας χώρος που θα ξεπερνάει τα στενά όρια μιας αγοράς τροφίμων, καθιστώντας την τόπο κοινωνικής συνεύρεσης όλων των ηλικιών.
Το έργο θεωρήθηκε αναγκαίο, καθώς η παρούσα κατάσταση λειτουργίας της Αγοράς δεν εξυπηρετεί τους πολίτες και τους επισκέπτες της πόλης, αλλά, αντίθετα, θα μπορούσε να πει κανείς ότι υποβαθμίζει αισθητικά και περιβαλλοντικά ένα κεντρικό σημείο της πόλης του Πειραιά, στερώντας
του σημαντικές προοπτικές ανάπτυξης.
Επίσης, η περιοχή της Αγοράς διαθέτει ένα σημαντικό νεοκλασικό κτιριακό απόθεμα, το οποίο μένει ανεκμετάλλευτο και υποβαθμίζεται συνεχώς από τις υφιστάμενες χρήσεις και παρεμβάσεις (π.χ. μεταλλικά στέγαστρα χωρίς καμία αρχιτεκτονική μελέτη). Παράλληλα, οι διαρκείς και μεγάλες ανάγκες ανεφοδιασμού
των καταστημάτων που λειτουργούν, αυξάνουν
την κυκλοφοριακή κίνηση, γεγονός το οποίο, σε συνδυασμό με τα ιδιαίτερα απορρίμματα που παράγουν τα καταστήματα, οδηγεί σε περιβαλλοντική υποβάθμιση της περιοχής.
Το γεγονός αυτό έχει συμπαρασύρει και τα καταστήματα της ευρύτερης περιοχής με αποτέλεσμα να παρουσιάζουν χαμηλότερη των προσδοκιών οικονομική δραστηριότητα και μειωμένα έσοδα για την πόλη του Πειραιά.
Ως Δήμος πιστέψαμε από την αρχή στη χρησιμότητα του έργου και δείξαμε αληθινό ενδιαφέρον για την υλοποίησή του. Είμαι βέβαιος πως η ριζική ανακαίνιση θα αλλάξει την εικόνα της πόλης και τη φυσιογνωμία της εμπορικής άποψης του Πειραιά η οποία συνδέεται στενά
με την ανάπλαση του ιστορικού κέντρου.
Γιάννης Μώραλης
Δήμαρχος Πειραιά
Με τις μεγαλόπνοες παρεμβάσεις που δρομολογούνται, αλλάζει άρδην η εικόνα του κέντρου της πόλης. Τόσο με την ανάπλαση της πλατείας Κοραή όσο και με την Ιστορική Κεντρική Αγορά. Στόχος μας και δέσμευσή μας είναι να γίνει ο Πειραιάς μια σύγχρονη, πιο φιλική και λειτουργική πόλη για τους κατοίκους της και πόλος έλξης επισκεπτών.
Πρόκειται για ένα έργο που εναρμονίζεται κυρίως με τον ιστορικό χαρακτήρα του χώρου που, χάρη στην απλότητα του σχεδιασμού, αντιπροσωπεύει τον αυθεντικό Πειραιά, αυτόν που έχει μείνει κρυμμένος για πολλά χρόνια.
Το Κέντρο ξαναγεννιέται, ανακτώντας την ασφάλεια και την παλιά του αίγλη.
Αλέξανδρος Νανόπουλος
Πρόεδρος Β’ Δημοτικής Κοινότητας

Ο χώρος της αγοράς γειτνιάζει με τον Πύργο του Πειραιά, ο οποίος αποτελεί εμβληματικό τοπόσημο της πόλης, ενώ σε μικρή απόσταση (περίπου 300μ.) βρίσκεται και ο κεντρικός σταθμός του Ηλεκτρικού (ΗΣΑΠ). Σε πολύ κοντινή απόσταση από την έξοδο του πεζόδρομου της οδού Λυκούργου προς την λεωφόρο Δημ. Γούναρη βρίσκεται ο αρχαιολογικός χώρος «Μακράς Στοάς Πειραιά», ο οποίος δυστυχώς παρουσιάζει εικόνα εγκατάλειψης και δεν είναι προσβάσιμος στο κοινό. Η περιοχή παρουσιάζει σημαντικό αρχαιολογικό ενδιαφέρον, δεδομένου ότι υπάρχουν αρκετοί αρχαιολογικοί χώροι σε κοντινή απόσταση από τον χώρο της Ιπποδαμείου Αγοράς.
Στόχος της ανάπλασης είναι η γενικότερη ποιοτική και λειτουργική αναβάθμιση της υφιστάμενης αγοράς και του χώρου που γειτνιάζει με αυτή, με ταυτόχρονη εξάλειψη διαπιστωμένων προβλημάτων, ώστε να διαμορφωθούν καλύτερες συνθήκες κυκλοφορίας και ζωής στην πόλη.
Ηλίας Σαλπέας
Διευθύνων Σύμβουλος “Πειραιάς Plus”
Ανάπλαση ιστορικού Κέντρου & Στεγάστρων
Βιοκλιματική ανάπλαση πλατείας ΣερφιώτουΑναπλάσεις πλατείων
Τόπος ανάπαυλας και συνάντησης για μικρούς και μεγάλους
Σκοπός της ανάπλασης της πλατείας Σερφιώτου είναι η δημιουργία ενός χώρου αναψυχής για τους κατοίκους της Καλλίπολης και γενικότερα της Α’ Δημοτικής Κοινότητας.
Το έργο αποσκοπεί στη δημιουργία μιας αναβαθμισμένης, λειτουργικά και αισθητικά, σύγχρονης πλατείας, η οποία θα αποτελέσει τόπο συνάντησης, συνύπαρξης και διαχείρισης ελεύθερου χρόνου για τους κατοίκους της περιοχής.
Η αναγκαιότητα της παρέμβασης προκύπτει από την υφιστάμενη κατάσταση της πλατείας και του περιβάλλοντα χώρου, με χαρακτηριστική την άναρχη στάθμευση αυτοκινήτων και την απουσία οργανωμένου ελεύθερου χώρου περιπάτου καθώς και την απουσία οργανωμένων περιοχών εστίασης. Απουσιάζουν επίσης συγκεκριμένοι χώροι απόθεσης απορριμμάτων, ο χώρος πρασίνου είναι ανοργάνωτος, τα καθιστικά σημεία ελάχιστα, ενώ εμφανής είναι και η έλλειψη σύγχρονου φωτισμού.
Η ανάπλαση της πλατείας επιτυγχάνεται μέσα από τις ακόλουθες γενικές παρεμβάσεις:
- Επανασχεδιασμός περιμετρικών πεζοδρομίων πλατείας τα οποία επιστρώνονται με ψυχρά υλικά και εμπλουτίζονται με πράσινο
- Δαπεδόστρωση της πλατείας με «χωμάτινα» δάπεδα τύπου kourasanit
- Διαμόρφωση χαράξεων όδευσης τυφλών
- Κατασκευή νέου δικτύου ηλεκτροφωτισμού
- Αναβάθμιση αστικού εξοπλισμού περιοχής με προσθήκη καθιστικών & σύγχρονων υπόγειων κάδων απορριμμάτων
- Ενίσχυση υφιστάμενης βλάστησης
- Αναβάθμιση υφιστάμενου δικτύου ομβρίων όπου κρίνεται αναγκαίο
- Οριοθέτηση θέσεων στάθμευσης περιμετρικά της πλατείας



Η πλατεία Σερφιώτου έχει διαμορφωθεί πριν 30 χρόνια και παρουσιάζει πλέον εμφανείς φθορές και καταστροφές οι οποίες υποβαθμίζουν τη λειτουργία της ως συνοικιακού εμπορικού και κοινωνικού κέντρου. Η ανάπλασή της έχει τεθεί σε δημόσια διαβούλευση από τον Δήμο Πειραιά και οι προτάσεις των κατοίκων έχουν ληφθεί υπόψη στην τελική διαμόρφωση της μελέτης. Με την αποκατάσταση και την αισθητική και λειτουργική αναβάθμιση που έχει δρομολογηθεί, είμαι πεπεισμένος ότι θα βελτιωθεί αισθητά η καθημερινότητα των κατοίκων και θα υπάρξει τόνωση της τοπικής οικονομικής ζωής και επιχειρηματικότητας.
Γιάννης Μώραλης
Δήμαρχος Πειραιά
Πρόκειται για ένα έργο που θα αλλάξει πολύ θετικά την εικόνα της Καλλίπολης. Ιδιαίτερη προσοχή έχει δοθεί στη δημιουργία πρόσθετου πρασίνου και χώρων αναψυχής.
Νικήτας Γκόλφης
Πρόεδρος Α’ Δημοτικής Κοινότητας
Η χρήση βιοκλιματικών υλικών στην πλακόστρωση, οι φυτεύσεις και η τοποθέτηση σκιάστρων θα αντιμετωπίσουν το φαινόμενο της θερμικής νησίδας, δηλαδή των υπερβολικά μεγάλων θερμοκρασιών που αναπτύσσονται στις αστικές περιοχές όταν επικρατεί καύσωνας. Μια πρόσθετη καινοτομία είναι ότι τα υλικά των δαπέδων θα είναι υδατοδιαπερατά, συμβάλλοντας έτσι στην οικολογική διαχείριση. Επίσης, θα αναβαθμιστούν οι υποδομές (καθιστικά, πέργκολες) που εξυπηρετούν τους επισκέπτες της πλατείας, με παράλληλη εκμετάλλευση της ηλιακής ενέργειας για τη φόρτιση κινητών τηλεφώνων, ηλεκτρικών ποδηλάτων κτλ. Με το έργο αυτό διασφαλίζεται η άνετη προσπέλαση των οδών και της πλατείας από όλους και ιδιαίτερα από άτομα με αναπηρία.
Ηλίας Σαλπέας
Διευθύνων Σύμβουλος “Πειραιάς Plus”
Βιοκλιματική ανάπλαση πλατείας Σερφιώτου
Βιοκλιματική αναπλάση οδών Κλεισόβης & ΚαρπάθουΑναπλάσεις δρόμων
Σκοπός της ανάπλασης των οδών Κλεισόβης & Καρπάθου είναι η γενικότερη ποιοτική και λειτουργική αναβάθμιση σε όλο το μήκος τους (από την ακτή Μιαούλη έως την ακτή Θεμιστοκλέους) με ταυτόχρονη εξάλειψη διαπιστωμένων προβλημάτων.
Τα έργα στοχεύουν:
- Στη γενικότερη αρχιτεκτονική και βιοκλιματική αναβάθμιση των οδών.
- Στην αύξηση των κοινόχρηστων χώρων πρασίνου αλλά και στη βελτίωση των υπαρχόντων.
- Στη διευκόλυνση της κυκλοφορίας των πεζών στα πεζοδρόμια με έμφαση στην προσβασιμότητα ΑμεΑ και ατόμων με προβλήματα όρασης.
- Στην οριοθέτηση νέων θέσεων στάθμευσης σε όλο το μήκος των οδών.
Η ανάπλαση επιτυγχάνεται μέσα από τις παρακάτω γενικές παρεμβάσεις:
- Αρχιτεκτονική διαμόρφωση των οδών (ανακατασκευή πεζοδρομίων, επίστρωση ψυχρών υλικών, διαμόρφωση χαράξεων όδευσης τυφλών κ.α.)
- Οδοποιία – οδοσήμανση
- Αναβάθμιση αστικού εξοπλισμού
- Δημιουργία ποδηλατόδρομου
- Ενίσχυση υφιστάμενης βλάστησης με στόχο την επιθυμητή περιβαλλοντική αναβάθμιση του μικροκλίματος της περιοχής
- Κατασκευή νέου δικτύου ηλεκτροφωτισμού των πεζοδρομίων
- Αναβάθμιση του υφιστάμενου δικτύου ομβρίων


Δύο ακόμα έργα μείζονος σημασίας για την περιοχή δρομολογήθηκαν με την υπογραφή της σύμβασης υλοποίησής τους από τον Αναπτυξιακό Οργανισμό του Δήμου “Πειραιάς Plus”. Τα έργα έχουν σχεδιαστεί με σεβασμό στην αειφορία και τη βιώσιμη ανάπτυξη της πόλης και προβλέπουν την εκτέλεση εργασιών σύμφωνα με τις αρχές του βιοκλιματικού σχεδιασμού, συμβάλλοντας έτσι στην πραγματοποίηση ενός οράματος ετών για μια πόλη πιο λειτουργική και ελκυστική για κατοίκους, επαγγελματίες και επισκέπτες.
Πρόκειται για έργα που εναρμονίζονται με τη φιλοσοφία που υιοθετήσαμε από την πρώτη μέρα που αναλάβαμε τη διοίκηση του Δήμου: Τη βιώσιμη ανάπτυξη, με γνώμονα τη βελτίωση της ποιότητας ζωής των δημοτών στην πράξη. Παρεμβαίνουμε με σχέδιο, με όραμα και με συνέπεια για να αναπλάσουμε, να αναβαθμίσουμε και να παραδώσουμε δύο κοινόχρηστους χώρους που για χρόνια έχουν ταλαιπωρηθεί από λάθος επιλογές.
Γιάννης Μώραλης
Δήμαρχος Πειραιά
Πρόκειται για ένα ιδιαίτερα σημαντικό έργο. Με τη συγκεκριμένη παρέμβαση, επιδιώκεται η αρχιτεκτονική και βιοκλιματική αναβάθμιση των οδών που θα έχει θετικό αποτέλεσμα στην επιχειρηματική δραστηριότητα στην περιοχή και στην καθημερινότητα των περιοίκων.
Νικήτας Γκόλφης
Πρόεδρος Α’ Δημοτικής Κοινότητας

Στόχος της ανάπλασης είναι οι κοινόχρηστοι αυτοί χώροι να αποκτήσουν χαρακτηριστικά τέτοια ώστε να αποτελέσουν ένα ζωντανό κύτταρο του αστικού ιστού, με λειτουργία που αναβαθμίζει και την αισθητική αλλά και τις συνθήκες ζωής και κυκλοφορίας σε επίπεδο γειτονιάς, μέσω ενός έργου που γίνεται με όρους σύγχρονου περιβαλλοντικού αστικού σχεδιασμού.
Ηλίας Σαλπέας
Διευθύνων Σύμβουλος “Πειραιάς Plus”
Βιοκλιματική οδών Κλεισόβης & Καρπάθου
Βιοκλιματική ανάπλαση Λ. Χατζηκυριακού & οδού ΣαχτούρηΑναπλάσεις δρόμων
Καλύτερες συνθήκες κυκλοφορίας και ζωής στην πόλη
Σκοπός των αναπλάσεων είναι η γενικότερη ποιοτική και λειτουργική αναβάθμιση των οδών σε όλο το μήκος τους με ταυτόχρονη εξάλειψη διαπιστωμένων προβλημάτων.
Τα έργα στοχεύουν:
- Στη γενικότερη αρχιτεκτονική και βιοκλιματική αναβάθμιση των οδών.
- Στην αύξηση των κοινόχρηστων χώρων πρασίνου αλλά και στη βελτίωση των υπαρχόντων.
- Στη διευκόλυνση της κυκλοφορίας των πεζών στα πεζοδρόμια με έμφαση στην προσβασιμότητα ΑμεΑ και ατόμων με προβλήματα όρασης.
- Στην οριοθέτηση νέων θέσεων στάθμευσης σε όλο το μήκος των οδών.

Η ανάπλαση της Λ. Χατζηκυριακού & της οδού Σαχτούρη επιτυγχάνεται μέσα από τις παρακάτω γενικές παρεμβάσεις:
- Αρχιτεκτονική διαμόρφωση των οδών (ανακατασκευή πεζοδρομίων, επίστρωση ψυχρών υλικών, υποδομές για ανεμπόδιστη κυκλοφορία ΑμεΑ κ.α.)
- Οδοποιία (ανακατασκευή οδοστρώματος) – οδοσήμανση
- Αναβάθμιση αστικού εξοπλισμού της περιοχής
- Ενίσχυση υφιστάμενης βλάστησης
- Κατασκευή νέου δικτύου ηλεκτροφωτισμού
- Αναβάθμιση του υφιστάμενου δικτύου ομβρίων
- Δημιουργία μονής κατεύθυνσης ποδηλατόδρομου επί της Σαχτούρη από το ύψος της Λ. Χατζηκυριακού έως την Γ. Θεοτόκη

Με το έργο αυτό, σε συνεργασία με τον Αναπτυξιακό Οργανισμό του Δήμου “Πειραιάς Plus” ως φορέα υλοποίησης, η Καλλίπολη γίνεται μια πιο σύγχρονη, φιλόξενη και λειτουργική περιοχή με σεβασμό στο τοπίο, την ιστορία και τον αρχαιολογικό της χώρο.
Με τις σημαντικές αυτές παρεμβάσεις ο Δήμος Πειραιά αποδεικνύει έμπρακτα ότι «oδηγεί» την πόλη με γνώμονα το Στρατηγικό Σχέδιο Βιώσιμης Αστικής Ανάπτυξης. «Οδηγεί» την πόλη όχι με το κριτήριο του εφήμερου αποτελέσματος, αλλά αυτό της βιώσιμης και μακροπρόθεσμης επίτευξης αναπτυξιακών στόχων και αξιοποίησης των συγκριτικών πλεονεκτημάτων προς όφελος όλων.
Γιάννης Μώραλης
Δήμαρχος Πειραιά
Η δημοτική αρχή υλοποιεί ένα σημαντικό έργο το οποίο πιστεύω ακράδαντα ότι θα δικαιώσει τις προσδοκίες μας για ένα αποτέλεσμα υψηλού επιπέδου, σύγχρονο, με αρχιτεκτονικό ενδιαφέρον που πάνω από όλα θα δημιουργήσει τις προϋποθέσεις μιας «νέας περιόδου» για την περιοχή μας.
Η ανάπλαση των κομβικών οδών Λ. Χατζηκυριακού & Σαχτούρη θα δώσει νέα πνοή στη σχέση των ανθρώπων με την περιοχή.
Νικήτας Γκόλφης
Πρόεδρος Α’ Δημοτικής Κοινότητας

Στόχος της ανάπλασης είναι η αισθητική αναβάθμιση του αστικού τοπίου και η δημιουργία ενός ευχάριστου και λειτουργικού περιβάλλοντος για τους κατοίκους καθώς και η βελτίωση του μικροκλίματος της περιοχής.
Μέσω του σχεδιασμού επιλέχθηκε η καλύτερη και πληρέστερη πρόταση από λειτουργική, αισθητική, τεχνική και οικονομική άποψη, σύμφωνα πάντα με τις απαιτήσεις της επιστήμης και τις αρχές του βιοκλιματικού περιβαλλοντικού σχεδιασμού.
Ηλίας Σαλπέας
Διευθύνων Σύμβουλος “Πειραιάς Plus”
Βιοκλιματική ανάπλαση Λ. Χατζηκυριακού & οδόύ Σαχτούρη
Βιοκλιματική ανάπλαση πλατείας ΚοραήΑναπλάσεις πλατείων
Σημείο αναφοράς για δημότες και επισκέπτες
Σκοπός της ανάπλασης της πλατείας Κοραή είναι η βελτίωση της προσβασιμότητας και της αισθητικής παράλληλα με τη βιοκλιματική και λειτουργική αναβάθμιση όλης της περιοχής.
Το έργο αποσκοπεί στην αναβάθμιση της πλατείας Κοραή και των πεζοδρόμων Δραγάτση και Καραΐσκου οι οποίες την περιβάλλουν, λαμβάνοντας υπόψη την εμβληματική παρουσία του Δημοτικού Θεάτρου και τη διαμόρφωση της πλατείας έναντι του θεάτρου από την ΑΤΤΙΚΟ ΜΕΤΡΟ.
Το έργο στοχεύει:
- Στη γενικότερη αρχιτεκτονική και βιοκλιματική αναβάθμιση της περιοχής.
- Στην αξιοποίηση των κοινόχρηστων χώρων (προβλέπει την οργάνωση των χώρων εστίασης) και των χώρων πρασίνου από τους πολίτες και τους επισκέπτες του Δήμου Πειραιά.
- Στην εύκολη πρόσβαση προς και από τους σταθμούς του ΜΕΤΡΟ.
Η ανάπλαση επιτυγχάνεται μέσα από τις ακόλουθες γενικές παρεμβάσεις συνολικής επιφάνειας περίπου 8.000 τ.μ.:
Πλατεία Κοραή 4.280 τ.μ., οδός Δραγάτση 1.220 τ.μ., οδός Δραγάτση έμπροσθεν Δημαρχείου 1.290 τ.μ., οδός Καραΐσκου 1.200 τ.μ.
- Στην πλατεία Κοραή προτείνεται κεντρικό συντριβάνι τύπου DRY DECK
- Στο κέντρο του πεζόδρομου της Δραγάτση διαμορφώνονται δύο όμοια υδάτινα στοιχεία – καταρράκτες
- Δαπεδοστρώνονται οι πεζόδρομοι και η πλατεία με ψυχρά υλικά, διαφόρων τύπων μαρμάρων και γρανιτών, που δημιουργούν ένα ιδιαίτερο μοτίβο
- Οργανώνονται οι περιοχές εστίασης που υπάρχουν ήδη, με πέργκολες ειδικού τύπου
- Διαμορφώνονται χαράξεις όδευσης τυφλών
- Αναβαθμίζεται ο αστικός εξοπλισμός με σύγχρονα καθιστικά, ζαρντινιέρες και σύγχρονους υπόγειους κάδους απορριμμάτων
- Ενισχύεται η υφιστάμενη βλάστηση
- Κατασκευάζεται νέο δίκτυο ηλεκτροφωτισμού
- Αναβαθμίζεται το υφιστάμενο δίκτυο συλλογής ομβρίων


Η σχεδιαζόμενη ανάπλαση είναι ένα έργο μακράς πνοής, που θα αλλάξει σημαντικά το κέντρο της πόλης μας. Σε συνδυασμό με την έλευση του ΜΕΤΡΟ, αλλά και τις πεζοπορικές διαδρομές που δημιουργούνται, θα βελτιωθεί σημαντικά η προσβασιμότητα για πεζούς, ποδηλάτες, εμποδιζόμενα άτομα και άτομα με αναπηρία, ενώ θα τονωθεί η εμπορική δραστηριότητα και θα καλυτερεύσει η καθημερινότητα των κατοίκων.
Θα καταβληθεί κάθε δυνατή προσπάθεια, βάσει σχεδιασμού και συνεργασίας του Αναπτυξιακού Οργανισμού του Δήμου “Πειραιάς Plus” με τον ανάδοχο, να ελαχιστοποιηθεί η όχληση των περιοίκων και η παρεμπόδιση της λειτουργίας των παρακείμενων επιχειρήσεων από τις εκτελούμενες εργασίες. Το έργο της βιοκλιματικής ανάπλασης του κέντρου, σε συνδυασμό με τις άλλες τέσσερις αναπλάσεις που έχουν ήδη εγκριθεί και δρομολογηθεί στις γειτονιές της πόλης, θα αλλάξουν ριζικά την εικόνα του Πειραιά.
Γιάννης Μώραλης
Δήμαρχος Πειραιά
Με την ανάπλαση της πλατείας Κοραή ανοίγει μία πολύ σημαντική σελίδα για την πόλη και τον Δήμο μας, καθώς υλοποιείται ένα έργο που θα αλλάξει άρδην την εικόνα του κέντρου.
Με τη βιοκλιματική ανάπλαση κάνουμε ακόμη ένα βήμα προς μία πόλη περισσότερο ανθρώπινη, καλαίσθητη, πράσινη, με καλύτερο μικροκλίμα. Μία πόλη που θα προσφέρει καλύτερες συνθήκες ζωής στους κατοίκους και τους επισκέπτες της.
Αλέξανδρος Νανόπουλος
Πρόεδρος Β’ Δημοτικής Κοινότητας
Βιοκλιματική ανάπλαση πλατείας Κοραή
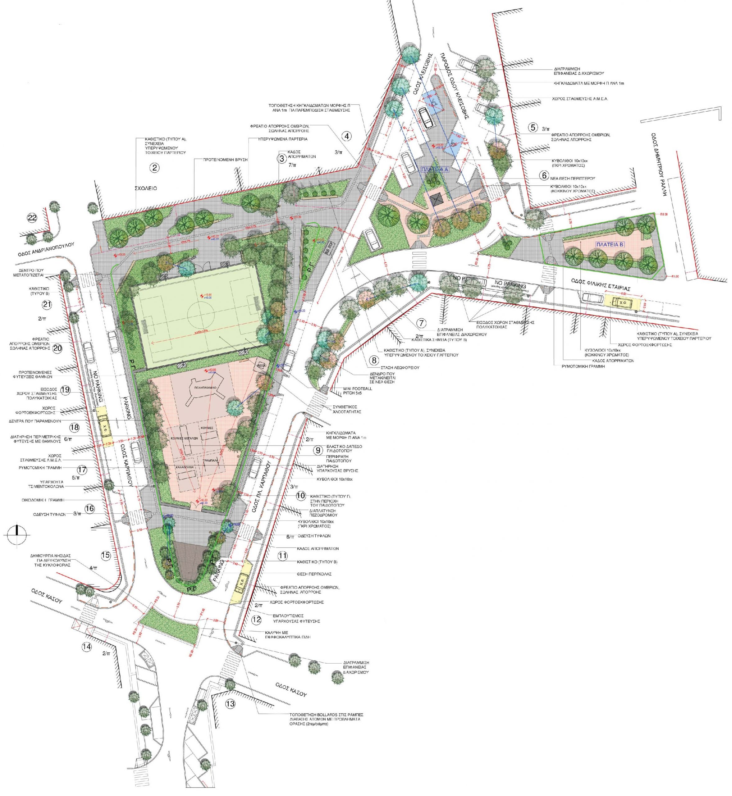
Ανάπλαση πλατείας ΚαρπάθουΑναπλάσεις πλατείων
Ενας χώρος αναψυχής και άθλησης για όλους.
Σκοπός της ανάπλασης της πλατείας Καρπάθου είναι η δημιουργία ενός πόλου έλξης και αναψυχής για τους κατοίκους της Καλλίπολης και γενικότερα της Α’ Δημοτικής Κοινότητας.
Στην πλατεία Καρπάθου, πέρα από τη λειτουργία της παιδικής χαράς η οποία θα ανακαινιστεί, θα δημιουργηθεί και γήπεδο ποδοσφαίρου που θα απευθύνεται στα παιδιά της γειτονιάς ώστε να μην παίζουν στον δρόμο. To γήπεδο αυτό θα χρησιμοποιείται τις πρωινές ώρες από τους μαθητές του 34ου δημοτικού σχολείου το οποίο γειτνιάζει με την πλατεία, ενώ τις απογευματινές ώρες θα είναι ανοικτό για το κοινό έως τις 22:00.
Η φύλαξη στην πλατεία θα είναι 24ωρη.
Παράλληλα, θα αναβαθμιστούν αισθητικά και λειτουργικά οι παρακείμενοι της πλατείας χώροι, ο πεζόδρομος της οδού Ανδριανοπούλου και ταυτόχρονα θα επιλυθεί το πρόβλημα της άτακτης και παράνομης στάθμευσης στην περιοχή της πλατείας.
Η ανάπλαση της πλατείας Καρπάθου περιλαμβάνει:
- Αρχιτεκτονική διαμόρφωση πλατείας (πλακοστρώσεις, περιφράξεις κλπ.)
- Ανακατασκευή παιδικής χαράς & αστικού εξοπλισμού
- Κατασκευή χώρου άθλησης (γήπεδο ποδοσφαίρου)
- Φωταγώγηση οδού, παιδικής χαράς, γηπέδου & χώρων πρασίνου
- Οδοποιία – οδοσήμανση
- Αναπλάσεις πρασίνου (μεταφύτευση 14 δέντρων, φύτευση 32 νέων δέντρων & 6.000 θάμνων-φυτών)
- Τοποθέτηση φωτιστικών led
- Ανάπλαση περιβάλλοντος χώρου

“Η ανάπλαση της πλατείας Καρπάθου και του περιβάλλοντα χώρου εντάσσεται στην προσπάθεια για βελτίωση της καθημερινότητας των δημοτών σε κάθε γειτονιά της πόλης μας. Είναι πολύ σημαντικό να δημιουργούνται νέες σύγχρονες παιδικές χαρές και νέοι χώροι άθλησης εντός του αστικού ιστού για να παίζουν και να αθλούνται τα παιδιά μας. Σε αυτό στοχεύει η ανάπλαση στο συγκεκριμένο οικόπεδο.
Τα έργα για έναν καλύτερο Πειραιά συνεχίζονται. Στο 1ο διαμέρισμα ετοιμάζουμε μια σειρά από αναπλάσεις, όπως είναι η ανάπλαση των οδών Κλεισόβης & Καρπάθου, της Λεωφόρου Χατζηκυριακού, της Μαρίας Χατζηκυριακού, της Γεωργίου Θεοτόκη, της Πλατείας Σερφιώτου, καθώς και της Ακτής Θεμιστοκλέους. Αυτά τα έργα είναι προς δημοπράτηση και θα ξεκινήσουν μέσα στο 2023.
Η πόλη αλλάζει και αλλάζει προς το καλύτερο”.
Γιάννης Μώραλης
Δήμαρχος Πειραιά
“Ο Δήμος Πειραιά υλοποιεί μια ολοκληρωμένη ανάπλαση στην πλατεία Καρπάθου. Η παιδική χαρά θα ανακατασκευαστεί πλήρως με πιστοποιημένα, τελευταίας τεχνολογίας όργανα, αυστηρά για τις ηλικίες στις οποίες απευθύνονται, δηλαδή τα μικρά παιδιά. Επίσης δημιουργείται χώρος με παγκάκια για να κάθονται οι ηλικιωμένοι. Το γηπεδάκι ποδοσφαίρου, κατά τις πρωινές ώρες θα χρησιμοποιείται αποκλειστικά από τους μαθητές του 34ου δημοτικού σχολείου, ενώ τις απογευματινές ώρες θα είναι ανοιχτό για όλα τα παιδιά της περιοχής. Αξιοσημείωτο είναι ότι στην πλατεία θα υπάρχει 24ωρη φύλαξη.
Με την ολοκλήρωση του έργου, ευελπιστούμε ότι η πλατεία Καρπάθου θα γίνει σημείο αναφοράς στην περιοχή τόσο για τα παιδιά όσο και για τις μεγαλύτερες ηλικίες”.
Νικήτας Γκόλφης
Πρόεδρος Α’ Δημοτικής Κοινότητας
Ανάπλαση πλατείας Καρπάθου
Project ID:
